PENTHOUSE
1987: NEW YORK, NY

In 1987, clients for whom I previously worked returned from 5 years in Paris with a veritable treasure trove of fine furnishings, pictures, and objects of high provenance, including Lalique light fixtures and dining chairs from The Normandie. They purchased a 2000 square foot Penthouse overlooking The Hudson River with a wrap around terrace and views of the Washington Bridge, and asked that I reconfigure the interior to accommodate their return to New York.

Having moved from Manhattan to Bridgehampton 3 years earlier, this was my first attempt at designing a New York space from afar, and while challenging, proved to be a rewarding exercise in melding classic furnishings and art into a “clean uncluttered foil”, as it was described by Eddie Lee Cohen in Interior Design.

Included here, images published in 1992 including those famous chairs for which I commissioned the late Brad Gordon to recreate the original needlepoint upholstery. Also showcased therein, a pyramidal fireplace sheathed in a fossilized black marble from Italy, and the ongoing use of the ceiling scrim used at Fanny Farmer.

This was the second of three projects I designed for these clients, as we continued our association years later in Greenwich, CT.

KEY WEST AIDS MEMORIAL COMPETITION
1987: KEY WEST, FL

The competition proposal shows my continued interest in vaulted roofs, in this case rainbow colored fiberglass skylights mounted on low concrete columns. Each 12 foot section of roof is reduced in width with the progression of colors matching the forced perspective of the angled perimeter walls below on which the names of those being memorialized are etched.

The Memorial site at the water's edge was conceived as an integral part of the design with views through the names to the sea and sky beyond.

Alas, my entry was determined too expensive at the time and the project was unrealized. However, I continue to find it inspirational and cogent to the AIDS crisis both then and now.

METROPOLITAN COMMUNITY CHURCH (PROJECT)
1988: LOS ANGELES, CA

On October 1, 1987 a 5.9 magnitude earthquake struck Whittier Narrows some 15 miles east of downtown LA. Large swaths of Culver City were damaged including a 1930's era Moorish style nightclub building occupied by The Metropolitan Community Church of Los Angeles (MCCLA).

My old friend and well known Gay Activist, David Mixner, asked me to come to LA to meet with the congregation to design a new building. Needless to say I was on the next plane. Since first entering Paul Rudolph's Tuskegee Chapel while a student at Auburn, it was my greatest desire to design a church.

The design was met with great enthusiasm, but when fundraising began the church received an offer to buy the property that they could not refuse. The site was purchased by a Jack in the Box franchise; the congregation decamped to a nearby warehouse, and enjoyed a large bank account for the first time in their history.

Such is an Architect's fate. You win some, loose some, and some you would like to have back. This is such a project...

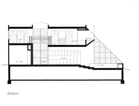
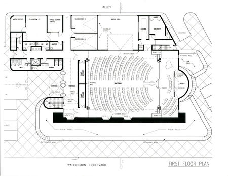
Also included here, design drawings for the 16,000 square foot building, images of the presentation model, and the key cross section through the Sanctuary looking toward the pulpit with the oculus and Chapel beyond.

The Sanctuary space was to be further defined by a pale blue curved ceiling of theatrical scrim, as well as skylights running parallel to it on either side washing the interior with light. A rainbow colored skylight above the Chapel was to illuminate its curved interior walls with soft colored light and be visible through the oculus.

It is among my most cherished un-built works...

ARCHITECT'S RESIDENCE (RYB)
1988: BRIDGEHAMPTON, NY

After moving to Bridgehampton in 1984, I set my sights on finding the perfect location for a residence based on the concepts of De Stijl. Since visiting the landmark exhibition "Visions of Utopia" at The Walker Art Center in Minneapolis in 1982, I was convinced that a project based on pure geometry and primary colors would be the perfect start for the next stage of my life and career after leaving New York.

Finding the right property became quite a challenge however, as my primary criteria included not seeing the home from any public roadway, and that it be revealed at the last moment at the end of a long serpentine drive, not unlike the approach to Fallingwater.

It was on my way back from a site visit to my Fanny Farmer project in Boston, while on final approach to East Hampton Airport, that I caught a quick glimpse of the sun glinting off a small pond surrounded by a deep woodland forest in Bridgehampton. I checked maps and surveys of the area and found nothing. Months later on a bike ride with my future husband we discovered a long driveway cut deep into the high moraine of Bridgehampton. We found boulders the size of elephants, and towering trees of every description including dogwood, cedar, oak and pepperidge, a tree that only grows in a wetland setting.

The property had just come on the market and the road was only a few days old when we found it. The realtor took me on a walking tour, it was early autumn and the trees were the colors of Chartres Cathedral. He said that he thought the most redeeming feature of the property was the pond. I said "What Pond"?, having long given up on ever finding the pond from that fateful flight.

He replied, "That Pond", and I turned to see through the colored leaves the long lost pond of my dreams, a deep kettle hole formed by the same glacier that left the boulders strewn across the landscape some 10,000 years earlier. I bought the property on the spot.

Included here, site plan and site elevation drawings showing the configuration of building elements, and a photograph of the scale model of the proposed residence. Little did I realize at the time, that upon completion in 1988, that it would become one of the most published residences at the end of The Twentieth Century.

Completed in 1988, RYB, as it eventually came to be known, was an instant media sensation. Many Fortune 500 companies contributed their latest products to the project among them, General Electric, which contributed state of the art halogen lighting for the first all halogen home ever constructed as well as the newest computerized dimming technologies from Lutron. GE also premiered its new all white Monogram Line of kitchen appliances in their "House of the Future" advertising campaign.

Other companies quickly followed suit including Kohler, DuPont which also premiered a new Corian line of products, Tarkett Flooring, and Benjamin Moore whose line of industrial “Iron Clad” coatings covered the exterior red and yellow walls and blue studio roof.

It wasn’t until 1997 however when Architectural Digest showcased the House and Studio in a 9 page cover story by Pilar Viladas that the project took on a life of its own. Quickly following the AD feature, Design and Shelter magazines, as well as film crews from all over the globe descended on the property, a pattern that has continued.

Here are selected images from the AD Article, Entitled “Primary Colors”. Composition: Red, Yellow, Blue, 1988.

POND LANE RESIDENCE
1991: SOUTHAMPTON, NY

In 1991, the founders of LeSportsac, Sandie and Mel Schifter asked me to renovate their Pond Lane residence in Southampton. The residence was a complex grouping of three structures that had been conjoined in the 1940s by a member of The Hearst family.

These included a stately 19th Century Farm House, a Dairy Barn from the early 20th Century, and a Chicken Coop of undetermined age and provenance.

The project required a complete gutting of the interior, new mechanical, electrical, and plumbing systems, the addition of a solarium off the large country kitchen, the conversion of the original barn hay loft into a vast Master Suite, the creation of two porches at the primary points of entry, new windows and exterior doors, a proper foundation for the chicken coop, and a complete re-sheathing of the exterior building envelope.

I selected large scale Cypress shingles for this last task which gave the residence a substantial scale and a seamless quality. These shingles were sourced from reclaimed wood benches from the demolished Sugar Bowl in New Orleans.

The owners were avid collectors of unique furnishings, art, and accessories including an entire Mackintosh dining set replete with cutlery and linens designed by the master, as well as many one-of-a-kind furniture pieces by Ettore Sottsass, the Italian Architect known for his whimsical and colorful Memphis creations.

The 1600 square foot Living Room was large enough to accommodate not only the aforementioned Mackintosh dining grouping, but also a separate 12 seat stainless steel and glass dining table across the vast space by Carlo Scarpa with chairs by Fornasetti, as well as two separate commodious seating areas.

The Master Bedroom ceiling was left exposed to the original barn shape which I sheathed in copper foil which was up-lit providing a warm glowing envelope with an origami quality of folded planes, a technique I learned at Paul Rudolph's West 57th Street Atelier in the mid 1970s.

SETLIFF RESIDENCE
1991: BECKLEY, WV

Upon publication of The Sledge residence in Southern Accents, I received an inquiry from Henry and Ellen Setliff in Beckley, West Virginia. They wanted a modern home completely removed from the traditional residential aesthetic, and came to New York to discuss their concepts.

It was a match made in heaven, and I set to design a residence reflective of their interests, and to blend unobtrusively into their heavily wooded property overlooking a lake. The resulting design was a series of interconnected arcs sheathed in pale green stucco with towering window walls of green reflective glass.

Numerous shopping visits to New York followed for furnishings, art and accessories. Here, a computer generated rendering used for the massing studies of the residence. Upon completion, their two young daughters became local celebrities, as their friends referred to visiting "The Jetsons" whenever they came over..... I took it as a compliment...

SURFSIDE DRIVE RESIDENCE
1993: BRIDGEHAMPTON, NY

In 1992 I received a call for a job interview to look at a Myron Goldfinger house from the mid-1970s perched on a dune in Bridgehampton. The house struck a severe profile as seen from the beach and the new owners wanted to "soften" its appearance and add significantly to its footprint.

The house, given its location and proximity to the ocean, surprisingly also lacked a connection to same. I began by designing a proper entrance composed of a translucent barrel vaulted skylight which connected the main structure to a separate guest house, and added a sculptural stair which connected the three levels of the home. Large expanses of glazing facing the ocean were added to the public rooms, and a new master suite was added on the second floor with views in three directions.

Here, photographs of the residence, its new entrance, and view of same from the ground level pool.